THEMIS

Dans cet immeuble de bureau, implanté dans un tissu urbain insolite et contraignant (entre le nouveau TGI de Sergio Piano et le boulevard Périphérique Nord), toute la problématique a été de définir sa vie intramuros. La mise en espace des fonctionnalités que nous souhaitions impulser à l'immeuble nous est venu au travers de réflexions sur les valeurs de durabilité, de convivialité, de souplesse et de responsabilité. Toutes ces valeurs sont portées par le caractère exemplaire de l'immeuble pensé et conçu pour répondre au mieux aux problématiques écologiques de notre temps. 

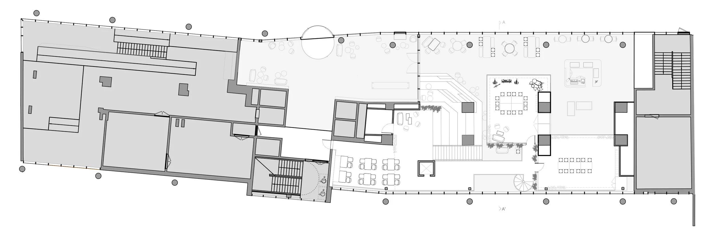
L'espace travaillé se situe au rez-de-chaussée, il représentera le centre névralgique de toute ces impulsions. Un accueil informel permettra, dans sa fonction première, d’accueillir et d'informer tous visiteurs invités chez Thémis. Mais également de donner toutes les informations indispensables sur cette vie intramuros et celle du quartier au travers de ce que nous avons appelé « le mur média ».

Il s'en suit plusieurs scénarios d'utilisation de l’espace en fonction des heures de la journée et de l'utilisateur. Un scénario est dédié à la restauration qui propose différentes typologiques de repas grâce à une cuisine que l'on a souhaité assumée et visible de la salle. La capacité de production et le nombre de places assises permettraient de délivrer une moyenne de 300 repas. 

Les autres scénarios se déroulent en dehors des heures de repas. Cet espace devient le foyer de Thémis. Un espace atelier sera ouvert aux utilisateurs de l'immeuble pour y orchestrer des cours de travaux manuels et de cuisine pouvant illustrer une thématique donnée.

Le bar réversible servira en continu des boissons chaudes et fraîches. Il deviendra le centre des after works et autres réceptions organisées. Il créera également un point de contact et d'attente aux différents rendez-vous organisés dans l'espace.

Ce lieu, nous le souhaitons vivant et dynamique tout au long de la journée. Le forum, mis en espace sous la forme d'un gradin, sera le lieu de toutes les animations éphémères (conférence / brocante...). Il permet l’échange et la communication entre les utilisateurs de Thémis mais aussi des interventions extérieures.

Les hauteurs généreuses de l'espace brut nous ont permis d'apporter une fonction inattendue et complémentaire avec les Box. Ces boîtes de réunions suspendues se transforment à la guise de l'utilisateur en salle de musique, salle de sport et salle de théâtre.

Chef de projet chez interface STUDIO - en collaboration avec NDDO et Tiphaine Bellanger - Pour AG2R La Mondiale

Précédent
Précédent

ASNIERES

Suivant
Suivant

GRAND CENTRAL